开奖记录计划

开奖记录计划
 
公告栏首页>公告栏
苏州三元宾馆厨房地砖改造及部分厕所改造招标公告
添加时间:2020/8/19 10:39:56 人气:528

苏州三元宾馆厨房地砖改造及部分厕所改造招标公告

苏州三元宾馆厨房地砖改造及部分厕所改造进行采购,欢迎有意向的单位前来参加投标。

一、招标编号:SY2020-04

二、招标内容:见附表

三、招标预算:苏州三元宾馆四厨房地砖改造及部分厕所改造,预算:200000元。

  四、投标单位资格要求:

  1、具有独立承担民事责任的能力;

  2、具有良好的商业信誉和健全的财务会计制度;

  3、具有履行合同所必需的设备和专业技术能力;

  4、有依法缴纳税收和社会保障资金的良好记录;

  5、至本项目响应文件截止时间前未列入失信被执行人、重大税收违法案件当事人名单、政府采购严重失信记录或政府采购网曝光台中尚在行政处罚期内的;

  6、法律、行政法规规定的其他条件;

  五、竞标单位需提供如下材料:

  1、营业执照复印件; 

  2、投标单位法人授权委托书、投标单位法定代表人及授权委托人的身份证复印件;

注:1、以上均要加盖公司章,否则为无效材料。

    2、如需报名可查看现场。

  六、谈判时间、地点:

  1、标书递交截止时间:2020 8 20 日下午17:00 之前;

  2、递交地点:苏州三元宾馆采购部;

  3、开标时间:2020 8 21 日下午 13:00 ;

4、开标地点:苏州三元宾馆3楼小会议室;

5、投标文件份数:正本 1 份;副本 2

6、评标标准与方法:合理低价中标。

七、施工工期说明

1、827日至912日。

2、中标单位需缴纳工时保证金两万元整。

  八、招标项目联系人及联系方式,联系人:蒋先生,联系电话:0512-65095401,13606210696。

  请认真阅读各项内容,进行必要的准备,并按文件的要求详细填写和编制响应文件,并按以上确定的时间、地点准时参加。

苏州三元宾馆采购部

2020年813




厨房):

附件2(厕所):

附件3(厕所):

附件4(厕所):


三元宾馆操作间地砖工程项目报价汇总表

工程名称:三元宾馆操作间地砖工程

标段:

1页 共1

序号

汇总内容

金额()

其中:暂估价()

1

分部分项工程费

1.1

人工费

1.2

材料费

1.3

施工机具使用费

1.4

企业管理费

1.5

利润

2

措施项目费

2.1

单价措施项目费

2.2

总价措施项目费

2.2.1

其中:安全文明施工措施费

3

其他项目费

3.1

其中:暂列金额

3.2

其中:专业工程暂估

3.3

其中:计日工

3.4

其中:总承包服务费

4

规费

5

税金

投标报价合计=1+2+3+4+5-甲供材料费_含设备/1.01

【新点2013清单造价江苏版 V10.3.5




分部分项工程和单价措施项目清单与计价表

工程名称:三元宾馆操作间地砖工程

标段:

第1页 共1页

序号

项目编码

项目名称

项目特征描述

计量
单位

工程量

金额(元)

综合单价

合价

其中

暂估价

1

011210002001

拆除

1、拆除墙体。
2、重砌墙体。

工日

3

 

 

 

2

011210002002

拆除

1、地砖地面拆除

m2

194.2

 

 

 

3

011210002003

防水

1、聚氨酯防水层1.5mm厚

m2

194.2

 

 

 

4

011210002004

垃圾驳运

1、人工挑至室外指定堆点
2、运距50m

m3

19.42

 

 

 

5

011210002006

排水沟

1、成品不锈钢排水沟
2、含不锈钢盖板

m

35

 

 

 

6

011210002007

排水管

1、DN50
2、PVC

m

25

 

 

 

7

011210002008

块料墙砖

1、白色墙砖
2、300*600mm

m2

36

 

 

 

8

011210002009

加气墙

1、轻质加气砖
2、专用粘结剂

m2

5

 

 

 

9

011210002010

地砖地面

1、60*60cm仿古地砖
2、50厚干硬性水泥砂浆

m2

194.2

 

 

 

10

011210002005

垃圾外运

1、外运
2、人工装车
3、运距20公里

m3

19.42

 

 

 

 

 

分部分项合计

 

 

 

 

 

 

 

 

 

 

 

 

 

 

 

 

 

 

 

 

 

 

 

 

 

 

 

 

 

 

 

 

 

 

 

 

 

 

 

 

 

 

 

 

 

 

 

 

 

 

 

 

 

 

 

 

 

 

 

本页小计

 

 

合    计

 

 

 

 

 

 

 

 

 

 

 

 

 

 

 

 

 

【新点2013清单造价江苏版 V10.3.5】

 

 

 

 

 

 

总价措施项目清单与计价表

工程名称:三元宾馆操作间地砖工程

标段:

第1页 共2页

序号

项目编码

项目名称

计算基础

费率(%)

金额(元)

调整
费率(%)

调整后
金额(元)

备注

1

011707001001

安全文明施工费

 

100.000

 

 

 

 

1.1

 

基本费

分部分项合计+单价措施
项目合计-除税工程设备费

1.500

 

 

 

 

1.2

 

增加费

分部分项合计+单价措施
项目合计-除税工程设备费

 

 

 

 

 

1.3

 

扬尘污染防治增加费

分部分项合计+单价措施
项目合计-除税工程设备费

0.210

 

 

 

 

2

011707002001

夜间施工

分部分项合计+单价措施
项目合计-除税工程设备费

 

 

 

 

 

3

011707003001

非夜间施工照明

分部分项合计+单价措施

项目合计-除税工程设备费

 

 

 

 

在计取非夜间施工照明费时,建筑工程、仿古工程、修缮土建部分仅地下室(地宫)部分可计取;单独装饰、安装工程、园林绿化工程、修缮安装部分仅特殊施工部位内施工项目可计取

4

011707004001

二次搬运

分部分项合计+单价措施

项目合计-除税工程设备费

 

 

 

 

 

5

011707005001

冬雨季施工

分部分项合计+单价措施

项目合计-除税工程设备费

0.125

 

 

 

 

 

 

 

 

 

 

 

 

 

 

 

 

【新点2013清单造价江苏版 V10.3.5】

工程名称:三元宾馆操作间地砖工程

标段:

第2页 共2页

序号

项目编码

项目名称

计算基础

费率(%)

金额(元)

调整
费率(%)

调整后
金额(元)

备注

6

011707006001

地上、地下设施、建筑物的临时保护设施

分部分项合计+单价措施项目合计-除税工程设备费

 

 

 

 

 

7

011707007001

已完工程及设备保护

分部分项合计+单价措施项目合计-除税工程设备费

0.025

 

 

 

 

8

011707008001

临时设施

分部分项合计+单价措施项目合计-除税工程设备费

1.600

 

 

 

 

9

011707009001

赶工措施

分部分项合计+单价措施项目合计-除税工程设备费

 

 

 

 

 

10

011707010001

工程按质论价

分部分项合计+单价措施项目合计-除税工程设备费

 

 

 

 

 

11

011707011001

住宅分户验收

分部分项合计+单价措施项目合计-除税工程设备费

 

 

 

 

在计取住宅分户验收时,大型土石方工程、桩基工程和地下室部分不计入计费基础

12

011707012001

建筑工人实名制费用

分部分项合计+单价措施项目合计-除税工程设备费

0.050

 

 

 

建筑工人实名制设备由建筑工人工资专用账户开户银行提供的,建筑工人实名制费用按表中费率乘以0.5系数计取

13

011707091001

特殊条件下施工增加费

分部分项合计+单价措施项目合计-除税工程设备费

 

 

 

 

 

合   计

 

 

 

 

 

 

 

【新点2013清单造价江苏版 V10.3.5】

 

报价单

三元二F残疾人卫生间                                                                 2020.08.17

序号

项目名称

项目特征描述

单位

工程量

金额

单价

合价

1

小便斗

 

1.000

 

 

2

开门洞

机械

1.000

 

 

3

地砖、墙砖修补

根据现有色

2.000

 

 

4

成品木门

相近色 净宽950

1.000

 

 

5

消防箱移位

拆除、移位

1.000

 

 

6

残疾人扶手

坐便器边

2.000

 

 

7

空调风管改建

接通主风管风口

1.000

 

 

8

水电改建

PPR管、长江电线

2.000

 

 

9

封门洞2.1*0.86

砖+免漆板

2.000

 

 

10

 

 

 

 

 

 

11

 

 

 

 

 

 

12

小计

 

 

 

 

 

13

管理费

 

 

14

税金

 

 

15

合计

 

 

报价单


三元二F包厢卫生间                                                                   2020.08.17

序号

项目名称

项目特征描述

单位

工程量

金额

单价

合价

1

女卫平台拆除

 

1.000

 

 

2

局部防水处理

JS、水不漏

4.000

 

 

3

坐便器安装

 

4.000

 

 

4

地砖

 

4.000

 

 

5

小便斗更换U2880HD

 

2.000

 

 

6

垃圾外运

 

1.000

 

 

7

顶面涂料

白色

12.000

 

 

8

地漏更换

不锈钢

2.000

 

 

9

 

 

 

 

 

 

10

 

 

 

 

 

 

11

 

 

 

 

 

 

12

 

 

 

 

 

 

13

 

 

 

 

 

 

14

 

 

 

 

 

 

15

小计

 

 

 

 

 

16

管理费

 

 

17

税金

 

 

18

合计

 

 

 

报价单

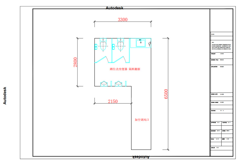
三元二F公共卫生间 (男/女)                                                                  2020.08.17

序号

项目名称

项目特征描述

单位

工程量

金额

单价

合价

1

改蹲位门、改小便池挡板

 

1.000

 

 

2

小便斗更换

箭牌内置感应器

2.000

 

 

3

拆扶手

成品含五金件

1.000

 

 

4

空调风管改造

风管、风口

2.000

 

 

5

拆坐便器

 

4.000

 

 

6

涂料

 

25.000

 

 

7

 

 

 

 

 

 

8

 

 

 

 

 

 

9

 

 

 

 

 

 

10

 

 

 

 

 

 

11

 

 

 

 

 

 

12

 

 

 

 

 

 

13

 

 

 

 

 

 

14

 

 

 

 

 

 

15

小计

 

 

 

 

 

16

管理费

 

 

17

税金

 

 

18

合计

 

 

三元宾馆报价汇总单          

三元宾馆

序号

项目名称

项目特征描述

单位

工程量

金额

综合单价

合价

1

三元宾馆操作间地砖工程

 

 

 

 

 

2

三元大厅整改

 

 

 

 

 

3

三元二F残疾人卫生间

 

 

 

 

 

4

三元二F包厢卫生间

 

 

 

 

 

5

三元二F公共卫生间 (男/女)

 

 

 

 

 

6

 

 

 

 

 

 

7

 

 

 

 

 

 

8

 

 

 

 

 

 

9

 

 

 

 

 

 

10

 

 

 

 

 

 

11

 

 

 

 

 

 

12

小计

 

0.00

13

夜间施工增加费

 

 

14

管理费

 

 

15

税金

 

 

16

合计

 

0.00


                               报价单

三元大厅整改                                                                  2020.08.17

序号

项目名称

项目特征描述

单位

工程量

金额

单价

合价

1

拆大理石

 

22.000

 

 

2

垃圾清运

 

1.000

 

 

3

大理石贴面

80*80

22.000

 

 

4

临时设施清理

 

1.000

 

 

5

 

 

 

 

 

 

6

 

 

 

 

 

 

7

 

 

 

 

 

 

8

 

 

 

 

 

 

9

 

 

 

 

 

 

10

 

 

 

 

 

 

11

 

 

 

 

 

 

12

 

 

 

 

 

 

13

 

 

 

 

 

 

14

 

 

 

 

 

 

15

小计

 

 

 

 

 

16

管理费

 

 

17

税金

 

 

18

合计

 

 

地址:苏州人民路887号 电话:051265110111、051265095211
传真:051265115609 备案号 苏ICP备88183469号 技术支持:正当时网络
开奖记录计划